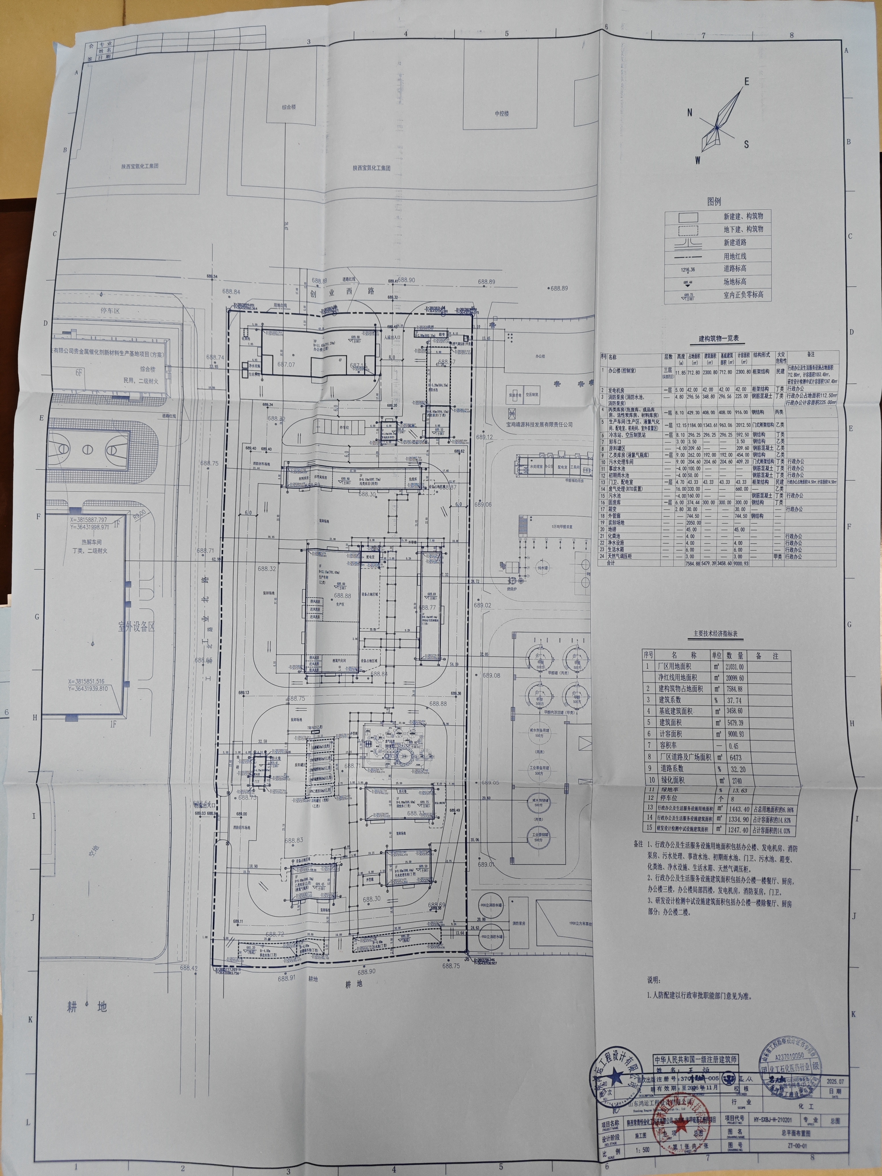
陕西常青恒业化工科技有限公司拟在凤翔区长青工业园区工业北路(规划路)南侧,创业西路西侧,靖源科技北侧区域新建2500吨/年甲硫基乙醛肟项目,项目占地21031㎡(合约31.54亩),2024年5月我局依据陕西良泰安全技术有限公司关于陕西常青恒业化工科技有限公司2500吨/年甲硫基乙醛肟项目安全预评价报告及各相关部门提供的有关该项目的意见,按程序对该项目总平面布局进行了审批,项目设计实施过程中,因行业标准等发生变化,项目布局需要调整,变更后总建筑面积5479.39㎡,计容建筑面积9000.93㎡。我局对该项目变更的总平面布局进行了初审,征求了相关部门意见,报经区政府审定,同意该项目变更后的总平面布局方案。现将该项目变更的总平面布局予以公示,公示期7个工作日(自2025年10月27日—2025年11月4日)。公示期间,如有异议,请拨打电话0917-7281795,0917-7282533或写信至凤翔区雍兴路南段西侧宝鸡市自然资源和规划局凤翔分局规划股,邮编:721400。
宝鸡市自然资源和规划局凤翔分局
2025年10月27日

陕公网安备61032202000120号
